(Prices correct as of today’s date, are updated daily, are subject to change and represent genuine availability at time of update).
Cruise only holidays are financially protected by ABTA. Fly cruise holidays are financially protected by Avalon Waterways under ATOL number 1082
Please click here to check the essential travel requirements before booking this cruise.
Want to add a hotel stay or change your flights?
Just call our team of cruise specialists to help build your dream cruise holiday today!
Prices based on 2 people sharing. Cruise only price does not include flights. Fly-cruise price may vary by chosen UK airport.
THE
RIVER VOYAGES DIFFERENCE
Our sister brand RiverVoyages is Europe’s leading expert in river cruise holidays. Click here to view this itinerary in full and speak to our team of river cruise specialists, here to help you plan your perfect cruise along the world’s most scenic waterways. With access to exclusive offers and savings, we’re ready to help you plan every detail of your next river cruise holiday.
Itinerary
Vilshofen
VILSHOFEN, GERMANY (EMBARKATION) Welcome to Germany. Your Suite Ship® is Ready for Boarding.Flights into Munich must arrive by 2 pm. Guests must be on board ship by 5 pm.Explore your ship and enjoy dinner on your first evening on board.EVENING CRUISE TO PASSAUVILSHOFEN.jpg Read More
Vilshofen
Passau
Linz
Dürnstein
Vienna
Bratislava
Budapest
Budapest
*This holiday is generally suitable for persons with reduced mobility. For customers with reduced mobility or any medical condition that may require special assistance or arrangements to be made, please notify your Cruise Concierge at the time of your enquiry, so that we can provide specific information as to the suitability of the holiday, as well as make suitable arrangements with the Holiday Provider on your behalf.
Explore Avalon Expression
Dining Room
A spacious, open-seating dining room with elegant dining service and large panoramic windows is situated on the Sapphire∘ deck. With an elegantly simple design, you can enjoy a full buffet breakfast or lunch with special options for those who wish to eat lightly, and delicious four-course dinners in the evening.Â
AVALON FRESH
With our exclusive Avalon Fresh menu, you can take an indulgent cruise without drifting from your healthy habits. From energizing juices at breakfast to artfully crafted salads at lunch to high-protein plates at dinner, Avalon Fresh options—including vegetarian and vegan specialties—are available at every meal so you can guiltlessly partake in creative cuisine without sacrificing great taste.




Active Excursions
FOR THE MOVER.
Whether you enjoy sightseeing by kayak, on two wheels, or on your own two feet, you’ll relish the energy of Avalon’s Active excursion collection. Biking, hiking, and boating tours pack real get-up-and-go for those who like to do the same.





Panorama Lounge
The Panorama Lounge and bar can be found on the Royal Deck.
Fitness Centre
On Board Fitness Center
Although heart rates are naturally elevated on an Avalon cruise, every Avalon Suite Ship features an updated fitness center—complete with the latest cardio and weight-training equipment—for those not looking to give their abs, biceps or triceps a vacation.
Whirlpool Atop The Skydeck
Although heart rates are naturally elevated on an Avalon cruise, every Avalon Suite Ship features an updated fitness center—complete with the latest cardio and weight-training equipment—for those not looking to give their abs, biceps or triceps a vacation.
Avalon travelers enjoy immersive experiences at every turn. Soak up the culture and cuisine of fascinating regions, then toast the day with therapeutic bubbles in the soothing Sky Deck whirlpool.
Yoga On Board
Before you set out to discover the lives of kings, queens and conquerors, you can easily find your inner warrior, cobra or happy baby. Avalon Adventure Hosts kick-start each day with a combination of yoga poses, Pilates exercises and gentle stretches in the fresh morning air on the Sky Deck or with panoramic views in the Panorama Lounge. Downward dogs welcome.
Sky Deck
- Sky Lounge (1)
- Navigation Bridge (2)
- Sky Grill (3)
- Whirlpool (4)
- Premium Lounge Chairs and Shade Awnings (5)
- Deck Game Area (6)
Royal Deck
- Observation Lounge (7)
- Panorama Bistro (8)
- Panorama Lounge (9)
- Bar (10)
- Adventure Center (12)
- Reception (11)
- Club Lounge (15)
- Elevator (14)
- Lobby (13)
- Cat. P Panorama Suites
- Royal Suites
Sapphire Deck
- Galley (16)
- Dining Room (17)
- Cat. A & B Panorama Suites
Indigo Deck
- Fitness Centre (18)
- Cat. D & E Deluxe Staterooms
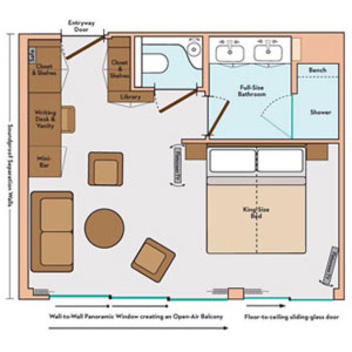
Avalon Expression Cabins & Suites
Deluxe Stateroom
